25237 Cadiz Drive, PUNTA GORDA, FL 33955
Property Photos
Would you like to sell your home before you purchase this one?
Priced at Only: $55,000
For more Information Call:
Address: 25237 Cadiz Drive, PUNTA GORDA, FL 33955
Property Location and Similar Properties
- MLS#: A4677244 ( Land )
- Street Address: 25237 Cadiz Drive
- Viewed: 10
- Price: $55,000
- Price sqft: $0
- Waterfront: No
- Year Built: Not Available
- Bldg sqft: 0
- Days On Market: 7
- Additional Information
- Geolocation: 26.7948 / -82.0309
- County: CHARLOTTE
- City: PUNTA GORDA
- Zipcode: 33955
- Subdivision: Punta Gorda Isles Sec 16
- Provided by: RE/MAX ALLIANCE GROUP
- Contact: Heather Ackley, PLLC
- 941-486-8686

- DMCA Notice
-
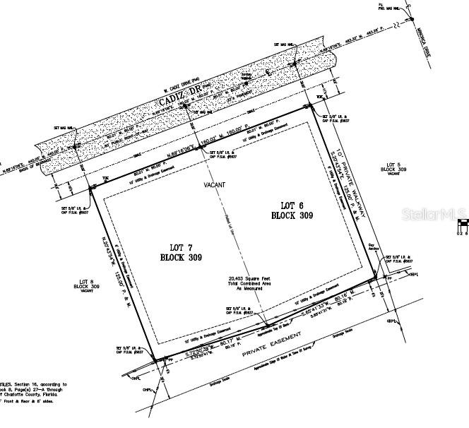
DescriptionExceptional opportunity to purchase TWO side by side buildable lots in the desirable, deed restricted community of Burnt Store Village, offering a combined total of approximately 20,400 SF (.46 acre) when purchased together. (Second parcel available separately under MLS A4677165.) Build your dream home, family compound or hold the second lot for investment/later,whatever life may bring you. Both lots are cleared future home sites with city water and sewer already in place, saving time and upfront development costs. The rear of the property features a highly desirable Greenbelt Buffer, providing added privacy and a pleasant natural backdrop. Ideally located in the center section of Burnt Store Village, the lots are just a short distance from the Village Community Park, which includes a scenic lake with walking path, picnic tables, and playground. The neighborhood is known for its quiet streets, well maintained surroundings, and walkable, bike friendly layout. Burnt Store Village is positioned just south of Charlotte Harbor and north of Burnt Store Marina, where residents enjoy access to golf, boating, marina services, and waterfront dining. Conveniently located near I 75, with historic Punta Gorda minutes to the north and Cape Coral to the south, this is an excellent setting to build a primary residence, seasonal home, or investment property. (THIS IS LOT 7.)
Payment Calculator
- Principal & Interest -
- Property Tax $
- Home Insurance $
- HOA Fees $
- Monthly -
For a Fast & FREE Mortgage Pre-Approval
Apply Now
Apply NowFeatures
Building and Construction
- Covered Spaces: 0.00
- Living Area: 0.00
Garage and Parking
- Garage Spaces: 0.00
- Open Parking Spaces: 0.00
Eco-Communities
- Water Source: None
Utilities
- Carport Spaces: 0.00
- Pets Allowed: Cats OK, Dogs OK
- Sewer: None
- Utilities: BB/HS Internet Available, BB/HS Internet Capable, Electricity Available, Phone Available
Finance and Tax Information
- Home Owners Association Fee: 370.00
- Insurance Expense: 0.00
- Net Operating Income: 0.00
- Other Expense: 0.00
- Tax Year: 2025
Other Features
- Association Name: Burnt Store Village POA Office
- Association Phone: 941-505-4229
- Country: US
- Current Use: Residential
- Legal Description: PGI 016 0309 0007 PUNTA GORDA ISLES SEC16 BLK309 LT7 1277/1002 TD4128/676 4750/990
- Area Major: 33955 - Punta Gorda
- Parcel Number: 422329185019
- Possession: Close Of Escrow
- View: Trees/Woods
- Views: 10
- Zoning Code: RSF3.5
Similar Properties
Nearby Subdivisions
Burnt Store Isles
Burnt Store Lakes
Burnt Store Marina
Burnt Store Meadows
Burnt Store Village
Charlotte Shores
Gulf Cove
Harborside Woods
Little Pines Estates Land Cond
Not Applicable
Not On List
Orange Grove Park Pt 01
Pirate Harbor
Pirate Harbor Sub
Port Charlotte
Punta Gorda
Punta Gorda Acres
Punta Gorda Isle Sec 21
Punta Gorda Isles
Punta Gorda Isles 16
Punta Gorda Isles 21
Punta Gorda Isles Sc 21
Punta Gorda Isles Sec 16
Punta Gorda Isles Sec 18
Punta Gorda Isles Sec 21
S P G Heights 1st Add
S P G Heights 2nd Add
S P G Heights 3rd Add
S P G Heights 4th Add
S P G Heights 5th Add
S P G Heights 6th Add
S P G Heights 7th Add
S P G Heights 8th Add
S P G Heights 9th Add
Scarecrow Farms
South Pg Heights
South Punta Gorda Heights
South Punta Gorda Heights 1st
Spg Heights 2nd Add
Tro G A
Trop G A
Trop G A Un 3
Trop G Acres
Trop Ga
Trop Gulf Acres
Tropic Acres
Tropical Gulf Acres
Tropical Gulf Acres Sec 07
Tropical Gulf Acres Un 06
Tropical Gulf Acres Un 1
Tropical Gulf Acres Un 10
Windsor Park
- Natalie Gorse, REALTOR ®
- Tropic Shores Realty
- Office: 352.684.7371
- Mobile: 352.584.7611
- Fax: 352.799.3239
- nataliegorse352@gmail.com













