2751 San Marco Way, WINTER HAVEN, FL 33884
Property Photos
Would you like to sell your home before you purchase this one?
Priced at Only: $274,990
For more Information Call:
Address: 2751 San Marco Way, WINTER HAVEN, FL 33884
Property Location and Similar Properties
- MLS#: O6202074 ( Residential )
- Street Address: 2751 San Marco Way
- Viewed: 63
- Price: $274,990
- Price sqft: $143
- Waterfront: No
- Year Built: 2026
- Bldg sqft: 1928
- Bedrooms: 3
- Total Baths: 2
- Full Baths: 2
- Garage / Parking Spaces: 2
- Days On Market: 622
- Additional Information
- Geolocation: 27.9526 / -81.6913
- County: POLK
- City: WINTER HAVEN
- Zipcode: 33884
- Subdivision: Villamar Ph 5
- Provided by: NEW HOME STAR FLORIDA LLC
- Contact: Charles Pennant
- 407-803-4083

- DMCA Notice
-
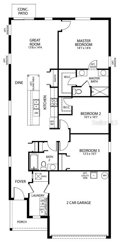
DescriptionThis charming home maximizes every inch, starting with an inviting front porch and entryway that leads into a mudroom, offering easy access to the spacious garage. It seamlessly connects to the expansive family room, the heart of the home, where a large window fills the space with natural light. Positioned at the rear, the airy breakfast room features a large sliding glass door that brings in even more light, creating a bright and welcoming atmosphere. The kitchen in The Victoria is a chefs dream, complete with elegant granite countertops, stylish shaker cabinets, and a 27 cubic foot stainless steel side by side refrigerator. A convenient pass through to the family room, abundant pantry space, and the option for an island enhance both functionality and style. Durable ceramic tile flooring extends throughout the main living areas, while plush carpeting adds warmth and comfort to the bedrooms. The master suite, tucked away at the back of the home for added privacy, includes a spacious walk in closet and a private bathroom. The master bath features a luxurious walk in tile shower with a shower enclosure, providing a spa like experience. The two additional bedrooms are generously sized, each with ample closet space. The laundry room comes complete with a washer and dryer, making everyday tasks more convenient. Outside, the landscaping and irrigation system ensure a beautifully maintained yard with minimal effort. With a second full bath, a two car garage, and a thoughtfully designed layout, The Victoria offers a perfect blend of practicality and coziness, making it an inviting retreat in the heart of Villamar. Includes full builder warranties.
Payment Calculator
- Principal & Interest -
- Property Tax $
- Home Insurance $
- HOA Fees $
- Monthly -
For a Fast & FREE Mortgage Pre-Approval
Apply Now
Apply NowFeatures
Building and Construction
- Builder Model: Victoria S3
- Builder Name: Maronda Homes, LLC of Florida
- Covered Spaces: 0.00
- Exterior Features: Sliding Doors
- Flooring: Carpet
- Living Area: 1492.00
- Roof: Shingle
Property Information
- Property Condition: Completed
Land Information
- Lot Features: Paved
Garage and Parking
- Garage Spaces: 2.00
- Open Parking Spaces: 0.00
Eco-Communities
- Water Source: Public
Utilities
- Carport Spaces: 0.00
- Cooling: Central Air
- Heating: Central, Electric
- Pets Allowed: Yes
- Sewer: Public Sewer
- Utilities: Cable Available
Finance and Tax Information
- Home Owners Association Fee: 156.34
- Insurance Expense: 0.00
- Net Operating Income: 0.00
- Other Expense: 0.00
- Tax Year: 2024
Other Features
- Appliances: Dishwasher, Disposal, Dryer, Electric Water Heater, Range, Refrigerator, Washer
- Association Name: See Agent
- Country: US
- Interior Features: Walk-In Closet(s)
- Legal Description: VILLAMAR PHASE 5 PB 194 PG 46-51 LOT 186
- Levels: One
- Area Major: 33884 - Winter Haven / Cypress Gardens
- Occupant Type: Vacant
- Parcel Number: 26-29-23-690583-001860
- Possession: Close Of Escrow
- Style: Contemporary
- Views: 63
Similar Properties
Nearby Subdivisions
Anderson Estates 6
Ashton Covey
Audubon Place
Bentley Place
Berryhill
Crescent Pointe
Crescent View
Crystals Landing
Cypress Grove
Cypress Grove Ph 04
Cypress Landing Ph 01
Cypress Landing Ph 03
Cypress Point
Cypress Pond
Cypresswood
Cypresswood Enclave Ph 01
Cypresswood Enclave Ph 02
Cypresswood Golf Villas
Cypresswood Golf Villas Gc2
Cypresswood Golf Villas Gi4
Cypresswood Golf Villas Un 3 B
Cypresswood Mdws
Cypresswood Meadows
Cypresswood Palma Ceia
Cypresswood Patio
Cypresswood Patio Homes
Cypresswood Plantations
Cypresswood Tennis Villas
Dexter Dell Subdivison
Dugger Rep
Elbert Hills
Eloise Oaks
Eloise Pointe Estates
Eloise Woods East Lake Mariam
Eloise Woods Lake Mariam Un
Eloise Woods Lake Ring
Eloise Woods Lake Roy
Eloise Woods West Lake Florenc
Emerald Palms
Emily Estates
Estateslk Florence
Fla Highlands Co Sub
Florida Highland Co
Fox Ridge Ph 01
Fox Ridge Phase One
Gaines Cove
Garden Grove
Gardens Interlochen
Harmony At Lake Eloise
Harmony On Lake Eloise
Harmony On Lake Eloise Phase 1
Harmony On Lake Eloise Phase 2
Harmony On Lake Eloise Phase 4
Harmonylk Eloise Ph 1
Hart Lake Cove Ph 02
Heron Cay
Highland Harbor
Interlochen
Jackson Lndg
Lake Ashton West Ph 01
Lake Ashton West Ph 1
Lake Ashton West Ph Ii North
Lake Ashton West Ph Ii South
Lake Bess Country Club
Lake Daisy Estates
Lake Daisy Estates Phase 2
Lake Daisy Manor
Lake Daisywood
Lake Dexter Moorings
Lake Dexter Woods 01
Lake Dexter Woods Ph 02
Lake Link Estates
Lake Mariam Hills Rep
Lakewood
Lakewood Add
Little Lake Estates
Mandolin
Mandolin 02
Morningside
Morningside Ph 02
Not Applicable
Oakgrove Sub
Orchid Spgs Patio Homes
Orchid Springs Patio Homes
Orleans
Osprey Pointe
Overlook Estates
Overlook Ests Ph 3
Overlook Rdg
Peace Creek Reserve
Peace Creek Reserve 40s
Peace Creek Reserve 50s
Peace Crk Reserve
Peach Crossings
Planters Walk Ph 03
Reflections East Ph 02
Richmond Square Sub
Ruby Lake Ph 02
Ruby Lake Ph 03
Ruby Lake Ph 04
Summerhaven Shores
Summit East Ph 02
Sundance Ranch Estates
Terranova Ph 01
Terranova Ph 04
Terranova Ph 05a
Traditiions Ph 1
Traditions Ph 01
Traditions Ph 02
Traditions Ph 1
Traditions Ph 2a
Traditions Villas
Tuscany At Winterset
Valenciawood Hills
Valhalla
Villa Mar
Villa Mar 40s
Villa Mar Phase 3
Villamar
Villamar Ph 1
Villamar Ph 2
Villamar Ph 2a
Villamar Ph 3
Villamar Ph 4
Villamar Ph 5
Villamar Ph 6
Villamar Ph Four
Villamar Phase 3
Villamar Phase 6
Villamar Phase 6 Pb 203 Pg 71
Villamar Phase 6 And Phase 6d
Villamar Phase 7
Villamar Phase I
Whispering Trails Ph 01
Whispering Trails Ph 02
Winter Haven West
Wyndsor At Lake Winterset
- Natalie Gorse, REALTOR ®
- Tropic Shores Realty
- Office: 352.684.7371
- Mobile: 352.584.7611
- Fax: 352.799.3239
- nataliegorse352@gmail.com








































