Tbd Asher Street Lot 44, Inlet Beach, FL 32461
Active
Property Photos
Would you like to sell your home before you purchase this one?
Priced at Only: $799,900
For more Information Call:
Address: Tbd Asher Street Lot 44, Inlet Beach, FL 32461
Property Location and Similar Properties
- MLS#: 776072 ( Residential )
- Street Address: Tbd Asher Street Lot 44
- Viewed: 96
- Price: $799,900
- Price sqft: $471
- Waterfront: No
- Year Built: 2024
- Bldg sqft: 1700
- Bedrooms: 4
- Total Baths: 3
- Full Baths: 3
- Garage / Parking Spaces: 1
- Days On Market: 257
- Additional Information
- Geolocation: 30.2815 / -86.0021
- County: WALTON
- City: Inlet Beach
- Zipcode: 32461
- Subdivision: No Named Subdivision
- Elementary School: Dune Lakes
- Middle School: Emerald Coast
- High School: South Walton
- Provided by: EXP Realty LLC
- DMCA Notice
-
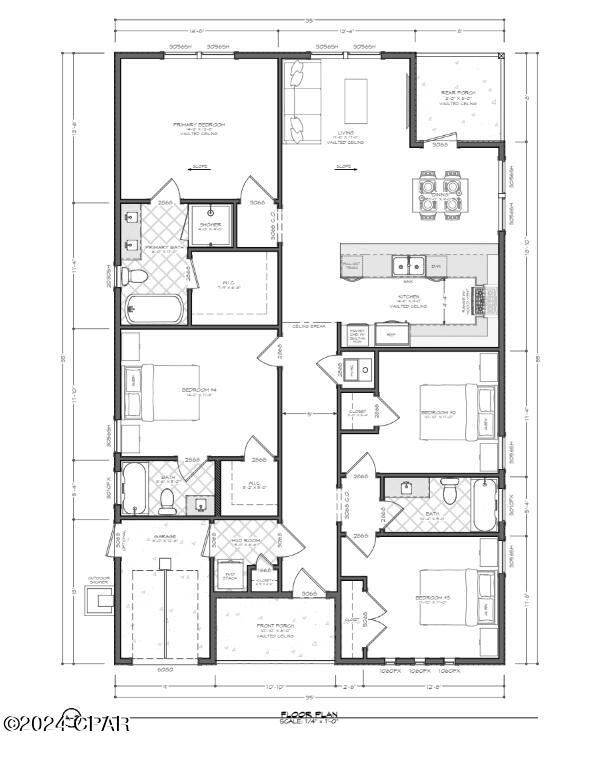
DescriptionFurnishing Packages available for purchase with professional designer! With rental Projections of over $70K a year, the Baby Blu offers a perfect blend of luxury & value with its 4 spacious bedrooms & 3 full baths! This unique ranch floor plan offers high end finishes, sloped ceilings and beams, a stand alone tub in the primary bath, quartz countertops, high end appliances, elegant flooring & lighting options. Where else can you find a one story home in Inlet Beach just minutes to the beach for this price? Wildwood at Inlet Beach is the perfect blend of modern aesthetic and beachside charm. This brand new coastal community by BluScape Homes, is sure to impress! Luxury and family friendly living are perfectly intertwined in this South Walton premier community that is conveniently located to amazing restaurants, shopping and family entertainment, including 30 Avenue, Rosemary Beach, Lake Powell, Camp Helen Gulf front state park, and access to the largest beach access in South Walton. You are surrounded by all the dining, shopping, and entertainment you could hope for in Inlet Beach and 30A to provide an amazing coastal lifestyle. There is a pedestrian underpass on Hwy 98 coming soon for added convenience to access all 30A has to offer, without having to cross Hwy 98. ** Listing includes base price of home and lot premium. Price may vary based on options selected.**
Payment Calculator
- Principal & Interest -
- Property Tax $
- Home Insurance $
- HOA Fees $
- Monthly -
For a Fast & FREE Mortgage Pre-Approval
Apply Now
Apply NowFeatures
Building and Construction
- Covered Spaces: 0.00
- Living Area: 0.00
- Roof: Metal
Land Information
- Lot Features: SprinklerSystem, Paved
School Information
- High School: South Walton
- Middle School: Emerald Coast
- School Elementary: Dune Lakes
Garage and Parking
- Garage Spaces: 1.00
- Open Parking Spaces: 0.00
Eco-Communities
- Pool Features: Community
Utilities
- Carport Spaces: 0.00
- Cooling: CentralAir, CeilingFans
- Heating: Central, Electric
- Road Frontage Type: CityStreet
- Sewer: PublicSewer
Finance and Tax Information
- Home Owners Association Fee: 0.00
- Insurance Expense: 0.00
- Net Operating Income: 0.00
- Other Expense: 0.00
- Pet Deposit: 0.00
- Security Deposit: 0.00
- Trash Expense: 0.00
Other Features
- Appliances: GasCooktop, GasOven, TanklessWaterHeater
- Legal Description: LOT 44 WILDWOOD VILLAGE S/D PB 25-99
- Levels: One
- Area Major: 12 - Walton County
- Occupant Type: Vacant
- Parcel Number: 36-3S-18-16114-000-0440
- Style: Coastal
- The Range: 0.00
- Unit Number: Lot 44
- Views: 96
Similar Properties
- Natalie Gorse, REALTOR ®
- Tropic Shores Realty
- Office: 352.684.7371
- Mobile: 352.584.7611
- Mobile: 352.799.3239
- nataliegorse352@gmail.com
