3344 Gardenia Drive, HERNANDO BEACH, FL 34607
Active
Property Photos
Would you like to sell your home before you purchase this one?
Priced at Only: $599,000
For more Information Call:
Address: 3344 Gardenia Drive, HERNANDO BEACH, FL 34607
Property Location and Similar Properties
- MLS#: W7882631 ( Residential )
- Street Address: 3344 Gardenia Drive
- Viewed: 4
- Price: $599,000
- Price sqft: $127
- Waterfront: Yes
- Wateraccess: Yes
- Waterfront Type: Canal - Brackish
- Year Built: 1995
- Bldg sqft: 4724
- Bedrooms: 4
- Total Baths: 3
- Full Baths: 2
- 1/2 Baths: 1
- Garage / Parking Spaces: 3
- Days On Market: 47
- Additional Information
- Geolocation: 28.4807 / -82.6568
- County: HERNANDO
- City: HERNANDO BEACH
- Zipcode: 34607
- Elementary School: Winding Waters K
- Middle School: Fox Chapel
- High School: Weeki Wachee
- Provided by: HOME LAND REAL ESTATE INC
- Contact: Kimberly Pye, PA
- 352-556-0909

- DMCA Notice
-
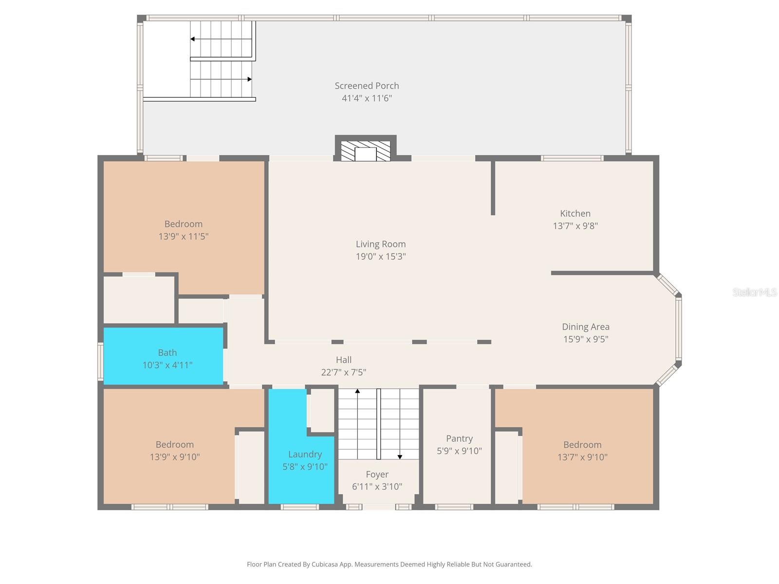
DescriptionStunning, remodeled and move in ready!!! ** 3 story waterfront home with in direct gulf access and no hoa!!! ** 4 bedrooms + 2. 5 bathrooms + open floor plan + real wood burning fireplace + 3 stories of large balconies/lanais for extra outdoor living space + 3 car garage (one side of the garage is deep enough to hold 2 cars, a large truck, or boat w/trailer) + downstairs custom bar area for entertaining family and friends (just add a pool table! ) + new roof 2021!! New ac!! Ac comes with a 10 year parts and labor warranty!! New water heater!! New electrical panel!! The home has an impressive 2 story grand entrance + double driveways connecting for extra parking and beautiful curb appeal + the yard is completely fenced in with baby safety fence +room to add a pool + concrete seawall + large concrete patio space by the clear water's edge which is large and deep enough to have an outdoor sectional, loungers, and outdoor dining set (most of the homes don't have this!! ) + palm trees and lush landscaping!! Stunning long distance views that you don't get from single level homes or even two story homes!! Huge home with 2,056 sq ft of living space; 4,724 total!! Plus... You have a tremendous amount of outdoor living space with the 3 extra large screened in balconies/lanai areas!! The kitchen is open to the large great room with the two new glass sliders which makes this home feel spacious, light, bright, and cheery!! The two glass sliders open fully disappearing and making the inside living space and the outside living space merge into one large open space for entertaining!! Cozy up to the fireplace for your fire and water experience!! The main living floor... Offers all brand new luxury vinyl plank flooring throughout that has never been lived on!! The kitchen is remodeled with gorgeous quartz countertops + a large breakfast bar for extra seating + an incredible amount of cabinets for storage + even the new sink overlooks the water!! Newer black stainless steel appliances!! Beautiful dining room!! The new glass sliders disappear out of the way and you have one big inside outside living space for entertaining family and friends!! The balconies are screened in... So enjoy that beautiful florida weather and breeze!! There are also 3 spacious bedrooms + a remodeled second bathroom with matching quartz finishes! Laundry room and enormous walk in pantry both with windows/views!! Windows everywhere to let in the natural light... Even a transom window in the second bathroom and window the spacious large master closet. The third level is exclusive for the master suite offering complete privacy and incredible long distance water views from your private 3rd floor balcony; enjoy your morning coffee out there watching the beautiful sunrises!! The master bedroom is large enough to have its own living room inside it, too!! The remodeled ensuite bathroom is a spa like experience in itself with marble countertops, dual sinks, relaxing soaking tub and inviting new ceramic tile shower with glass door!! The bottom level is a blank canvas to create your favorite space... A gym, an entertainment game room, a workshop, an incredible storage area!! It's complete with a 1/2 bath for home owner convenience! Enjoy fishing, kayaking, paddle boarding, and boating right from your backyard and floating dock!! Easily go through the boat lift to get out to the gulf of america!! Adjoining lot to the south/right of the house is available separately for $125,000.
Payment Calculator
- Principal & Interest -
- Property Tax $
- Home Insurance $
- HOA Fees $
- Monthly -
For a Fast & FREE Mortgage Pre-Approval
Apply Now
Apply NowFeatures
Building and Construction
- Covered Spaces: 0.00
- Exterior Features: Balcony, Private Entrance, Private Mailbox, Private Yard, Rain Gutters
- Fencing: Chain Link
- Flooring: Carpet, Luxury Vinyl, Tile
- Living Area: 2056.00
- Roof: Shingle
Land Information
- Lot Features: Cleared, In County, Landscaped, Level, Paved
School Information
- High School: Weeki Wachee High School
- Middle School: Fox Chapel Middle School
- School Elementary: Winding Waters K8
Garage and Parking
- Garage Spaces: 3.00
- Open Parking Spaces: 0.00
- Parking Features: Bath In Garage, Boat, Driveway, Garage Door Opener, Ground Level, Open, Oversized, RV Access/Parking, Workshop in Garage
Eco-Communities
- Water Source: Public
Utilities
- Carport Spaces: 0.00
- Cooling: Central Air
- Heating: Central, Electric
- Pets Allowed: Yes
- Sewer: Public Sewer
- Utilities: Cable Available, Sewer Available
Finance and Tax Information
- Home Owners Association Fee: 0.00
- Insurance Expense: 0.00
- Net Operating Income: 0.00
- Other Expense: 0.00
- Tax Year: 2024
Other Features
- Appliances: Dishwasher, Disposal, Range, Refrigerator
- Country: US
- Furnished: Unfurnished
- Interior Features: Ceiling Fans(s), Open Floorplan, PrimaryBedroom Upstairs, Split Bedroom, Stone Counters, Walk-In Closet(s), Wet Bar
- Legal Description: HERNANDO BEACH UNIT 12 BLK 112 LOTS 3
- Levels: Three Or More
- Area Major: 34607 - Spring Hl/Brksville/WeekiWachee/Hernando B
- Occupant Type: Vacant
- Parcel Number: R1322316235011200040
- Style: Key West
- View: Water
- Zoning Code: R1B
Similar Properties
Nearby Subdivisions
Gulf Coast Ret
Gulf Coast Ret Unit 1
Gulf Coast Ret Unit 2
Gulf Coast Ret Unit 4
Gulf Coast Ret Unit 6
Gulf Coast Retreats
Hernando Beach
Hernando Beach Unit 10
Hernando Beach Unit 11
Hernando Beach Unit 12
Hernando Beach Unit 13
Hernando Beach Unit 13-b
Hernando Beach Unit 14
Hernando Beach Unit 7
Hernando Beach Unit 9
N/a
None
Not On List
Unplatted
- Natalie Gorse, REALTOR ®
- Tropic Shores Realty
- Office: 352.684.7371
- Mobile: 352.584.7611
- Mobile: 352.799.3239
- nataliegorse352@gmail.com
















































































