31218 Midnight Sun Way, WESLEY CHAPEL, FL 33545
Active
Property Photos
Would you like to sell your home before you purchase this one?
Priced at Only: $279,990
For more Information Call:
Address: 31218 Midnight Sun Way, WESLEY CHAPEL, FL 33545
Property Location and Similar Properties
- MLS#: TB8458343 ( Residential )
- Street Address: 31218 Midnight Sun Way
- Viewed: 8
- Price: $279,990
- Price sqft: $162
- Waterfront: No
- Year Built: 2026
- Bldg sqft: 1724
- Bedrooms: 3
- Total Baths: 3
- Full Baths: 2
- 1/2 Baths: 1
- Garage / Parking Spaces: 1
- Days On Market: 93
- Additional Information
- Geolocation: 28.2819 / -82.3002
- County: PASCO
- City: WESLEY CHAPEL
- Zipcode: 33545
- Subdivision: Towns At Woodsdale
- Elementary School: Wesley Chapel
- Middle School: Thomas E Weightman
- High School: Wesley Chapel
- Provided by: D R HORTON REALTY OF TAMPA LLC
- Contact: Jodi Smenda
- 813-736-3541

- DMCA Notice
-
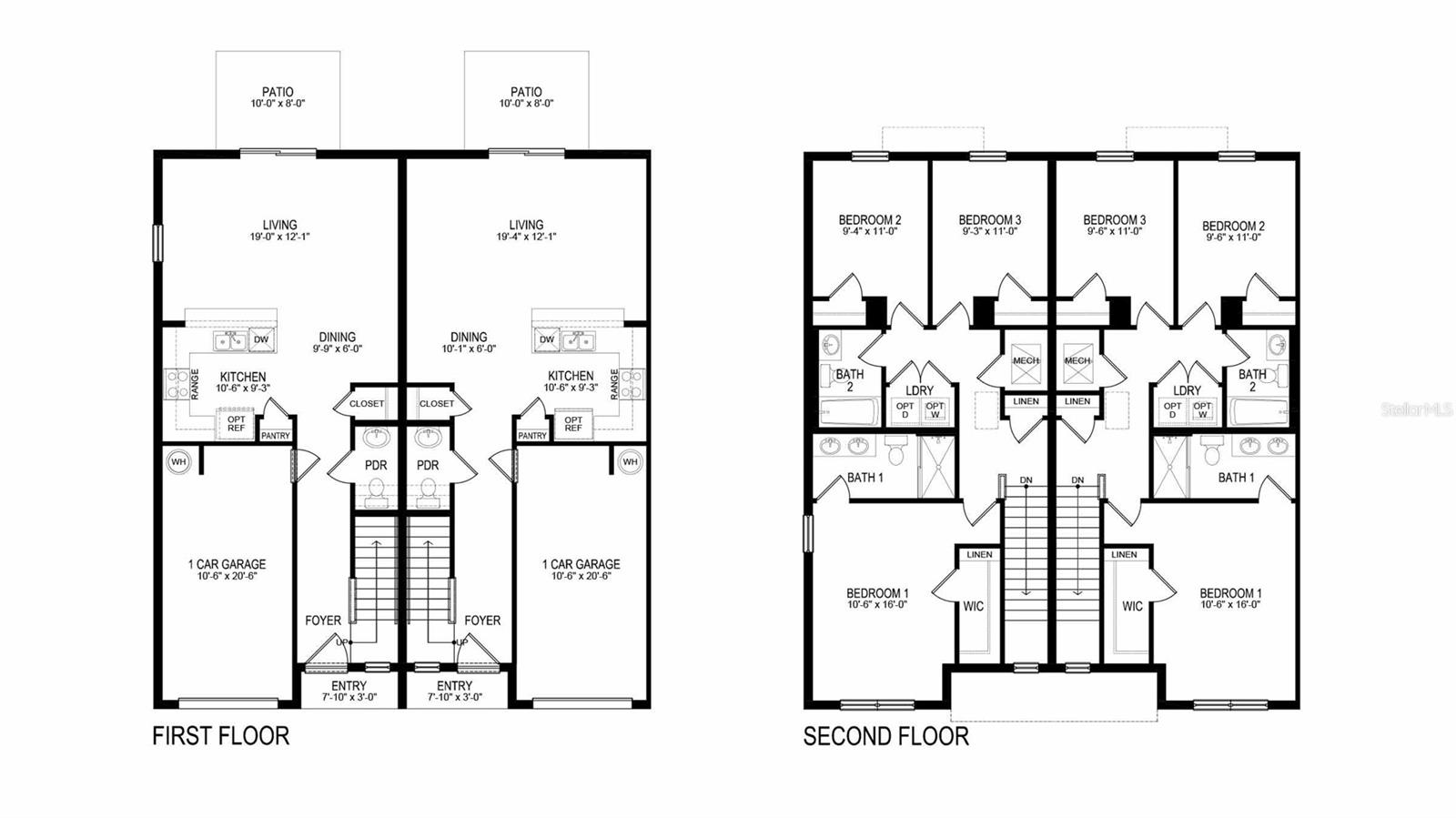
DescriptionUnder Construction. The builder is offering buyers up to $25,000 towards closing costs with the use of a preferred lender and title company. Towns at Woodsdale are situated with quick access to I 75 and in a prime location of the Wesley Chapel booming city, which was recently named by the North Tampa Bay Chambers of Commerce as the regions most desirable location in the Tampa suburbs. Close to all things shopping, dining, entertainment, and not to mention the areas top rated local and charter schools, this community offers you endless opportunities. This community features thoughtfully designed, open concept floor plans to suit every lifestyle. Each home is built with durable concrete block construction on the first and second stories and includes Smart Home System for seamless modern living. Pictures, photographs, colors, features, and sizes are for illustration purposes only and will vary from homes as built. Home and community information, including pricing, included features, terms, availability, and amenities, are subject to change and prior sale at any time without notice or obligation. Materials may vary based on availability.
Payment Calculator
- Principal & Interest -
- Property Tax $
- Home Insurance $
- HOA Fees $
- Monthly -
For a Fast & FREE Mortgage Pre-Approval
Apply Now
Apply NowFeatures
Building and Construction
- Builder Model: Pearson B
- Builder Name: D.R. Horton
- Covered Spaces: 0.00
- Flooring: Carpet, Luxury Vinyl
- Living Area: 1463.00
- Roof: Shingle
Property Information
- Property Condition: Under Construction
School Information
- High School: Wesley Chapel High-PO
- Middle School: Thomas E Weightman Middle-PO
- School Elementary: Wesley Chapel Elementary-PO
Garage and Parking
- Garage Spaces: 1.00
- Open Parking Spaces: 0.00
- Parking Features: Parking Pad
Eco-Communities
- Water Source: Public
Utilities
- Carport Spaces: 0.00
- Cooling: Central Air
- Heating: Central, Heat Pump
- Pets Allowed: Yes
- Sewer: Public Sewer
- Utilities: Public
Amenities
- Association Amenities: Clubhouse, Playground, Pool
Finance and Tax Information
- Home Owners Association Fee Includes: Maintenance Grounds
- Home Owners Association Fee: 61.00
- Insurance Expense: 0.00
- Net Operating Income: 0.00
- Other Expense: 0.00
- Tax Year: 2025
Other Features
- Appliances: Dishwasher, Electric Water Heater, Microwave, Refrigerator, Washer
- Association Name: Access Management
- Country: US
- Furnished: Unfurnished
- Interior Features: Open Floorplan
- Legal Description: TOWNS AT WOODSDALE PHASE 2 PB 92 PG 143 BLOCK 18 LOT 227
- Levels: Two
- Area Major: 33545 - Wesley Chapel
- Occupant Type: Vacant
- Parcel Number: 27 25 20 0240 01800 2270
- Zoning Code: MPUD
Similar Properties
Nearby Subdivisions
Avalon Park
Avalon Park West Ph 2 4 5 6 7
Avalon Park Westnorth Ph 1a
Avalon Park Westnorth Ph 2 4 5
Chapel Xing Prcl 5
Chapel Xings Prcl E
Epperson Crystal Lagoon Twnhms
Epperson North Twnhms Ph 4
Meadow Rdg Ph A1
Meadow Ridge At Epperson
Mirada Pcls 8a 8b
Towns At Woodsdale
Townswatergrass
Twin Crkschapel Xings
Wesley Reserve At Chapel Cross
Wyndrush Twnhms
- Natalie Gorse, REALTOR ®
- Tropic Shores Realty
- Office: 352.684.7371
- Mobile: 352.584.7611
- Mobile: 352.799.3239
- nataliegorse352@gmail.com































