31226 Midnight Sun Way, WESLEY CHAPEL, FL 33545
Active
Property Photos
Would you like to sell your home before you purchase this one?
Priced at Only: $284,990
For more Information Call:
Address: 31226 Midnight Sun Way, WESLEY CHAPEL, FL 33545
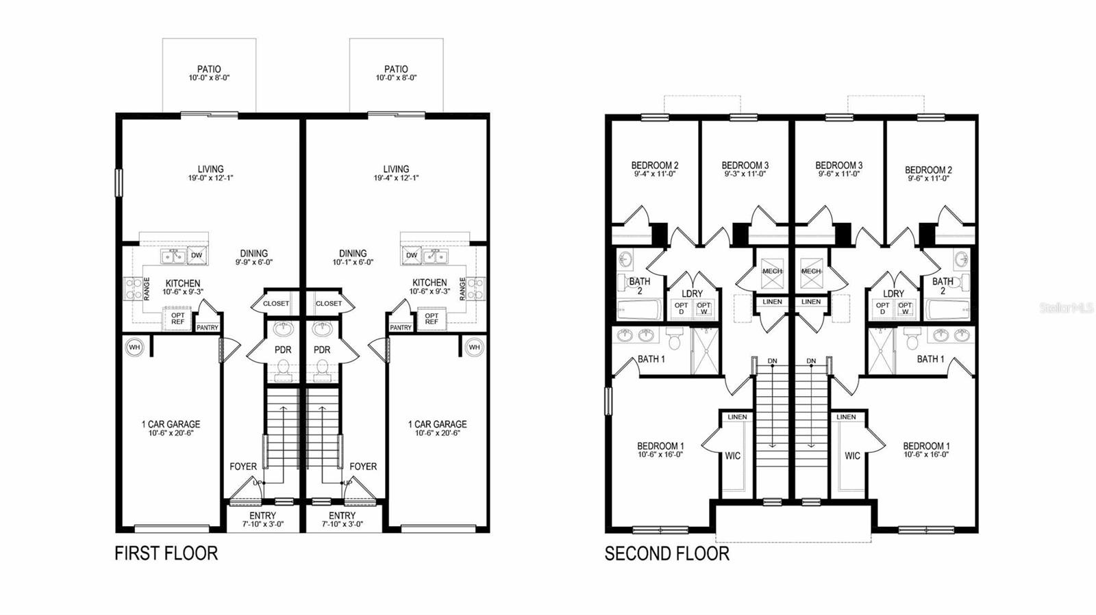
Property Location and Similar Properties
- MLS#: TB8458348 ( Residential )
- Street Address: 31226 Midnight Sun Way
- Viewed: 1
- Price: $284,990
- Price sqft: $165
- Waterfront: No
- Year Built: 2026
- Bldg sqft: 1724
- Bedrooms: 3
- Total Baths: 3
- Full Baths: 2
- 1/2 Baths: 1
- Garage / Parking Spaces: 1
- Days On Market: 46
- Additional Information
- Geolocation: 28.2818 / -82.3001
- County: PASCO
- City: WESLEY CHAPEL
- Zipcode: 33545
- Subdivision: Towns At Woodsdale
- Elementary School: Wesley Chapel Elementary PO
- Middle School: Thomas E Weightman Middle PO
- High School: Wesley Chapel High PO
- Provided by: D R HORTON REALTY OF TAMPA LLC
- Contact: Jodi Smenda
- 813-736-3541

- DMCA Notice
-
DescriptionUnder Construction. The builder is offering buyers up to $25,000 towards closing costs with the use of a preferred lender and title company. Woodsdale is situated with quick access to I 75 and in a prime location of the booming city, which was recently named by the North Tampa Bay Chambers of Commerce as the regions most desirable location in the Tampa suburbs. Close to all things shopping, dining, entertainment, and not to mention the areas top rated local and charter schools, this community offers you endless opportunities. Each home is constructed with concrete block on 1st and 2nd stories, comes equipped with D.R. Hortons Smart Home System, and is backed by Americas #1 Builder since 2002. Pictures, photographs, colors, features, and sizes are for illustration purposes only and will vary from the homes as built. Home and community information, including pricing, included features, terms, availability, and amenities, are subject to change and prior sale at any time without notice or obligation. Materials may vary based on availability. D.R. Horton Reserves all Rights.
Payment Calculator
- Principal & Interest -
- Property Tax $
- Home Insurance $
- HOA Fees $
- Monthly -
For a Fast & FREE Mortgage Pre-Approval
Apply Now
Apply NowFeatures
Building and Construction
- Builder Model: Pearson B
- Builder Name: D.R. Horton
- Covered Spaces: 0.00
- Flooring: Carpet, Luxury Vinyl
- Living Area: 1463.00
- Roof: Shingle
Property Information
- Property Condition: Under Construction
School Information
- High School: Wesley Chapel High-PO
- Middle School: Thomas E Weightman Middle-PO
- School Elementary: Wesley Chapel Elementary-PO
Garage and Parking
- Garage Spaces: 1.00
- Open Parking Spaces: 0.00
- Parking Features: Parking Pad
Eco-Communities
- Water Source: Public
Utilities
- Carport Spaces: 0.00
- Cooling: Central Air
- Heating: Central, Heat Pump
- Pets Allowed: Yes
- Sewer: Public Sewer
- Utilities: Public
Amenities
- Association Amenities: Clubhouse, Playground, Pool
Finance and Tax Information
- Home Owners Association Fee Includes: Maintenance Grounds
- Home Owners Association Fee: 61.00
- Insurance Expense: 0.00
- Net Operating Income: 0.00
- Other Expense: 0.00
- Tax Year: 2025
Other Features
- Appliances: Dishwasher, Electric Water Heater, Microwave, Refrigerator, Washer
- Association Name: Access Management
- Country: US
- Furnished: Unfurnished
- Interior Features: Open Floorplan
- Legal Description: TOWNS AT WOODSDALE PHASE 2 PB 92 PG 143 BLOCK 18 LOT 229
- Levels: Two
- Area Major: 33545 - Wesley Chapel
- Occupant Type: Vacant
- Parcel Number: 27 25 20 0240 01800 2290
- Zoning Code: MPUD
Similar Properties
Nearby Subdivisions
Avalon Park
Avalon Park West Ph 2 4 5 6 7
Avalon Park Westnorth Ph 1a
Avalon Park Westnorth Ph 2 4 5
Chapel Xing Prcl 5
Chapel Xings Prcl E
Epperson Crystal Lagoon Twnhms
Epperson North Twnhms Ph 4
Meadow Ridge At Epperson
Towns At Woodsdale
Townswatergrass
Twin Crkschapel Xings
Wesley Reserve At Chapel Cross
- Natalie Gorse, REALTOR ®
- Tropic Shores Realty
- Office: 352.684.7371
- Mobile: 352.584.7611
- Mobile: 352.799.3239
- nataliegorse352@gmail.com































