18409 Tyler Road, ODESSA, FL 33556
Active
Property Photos
Would you like to sell your home before you purchase this one?
Priced at Only: $1,800,000
For more Information Call:
Address: 18409 Tyler Road, ODESSA, FL 33556
Property Location and Similar Properties
- MLS#: TB8471433 ( Residential )
- Street Address: 18409 Tyler Road
- Viewed: 179
- Price: $1,800,000
- Price sqft: $175
- Waterfront: Yes
- Wateraccess: Yes
- Waterfront Type: Pond
- Year Built: 1992
- Bldg sqft: 10278
- Bedrooms: 6
- Total Baths: 7
- Full Baths: 5
- 1/2 Baths: 2
- Garage / Parking Spaces: 3
- Days On Market: 96
- Additional Information
- Geolocation: 28.1426 / -82.6387
- County: PASCO
- City: ODESSA
- Zipcode: 33556
- Subdivision: Unplatted
- Provided by: COASTAL PROPERTIES GROUP INTERNATIONAL
- Contact: Janice Mason
- 727-493-1555

- DMCA Notice
-
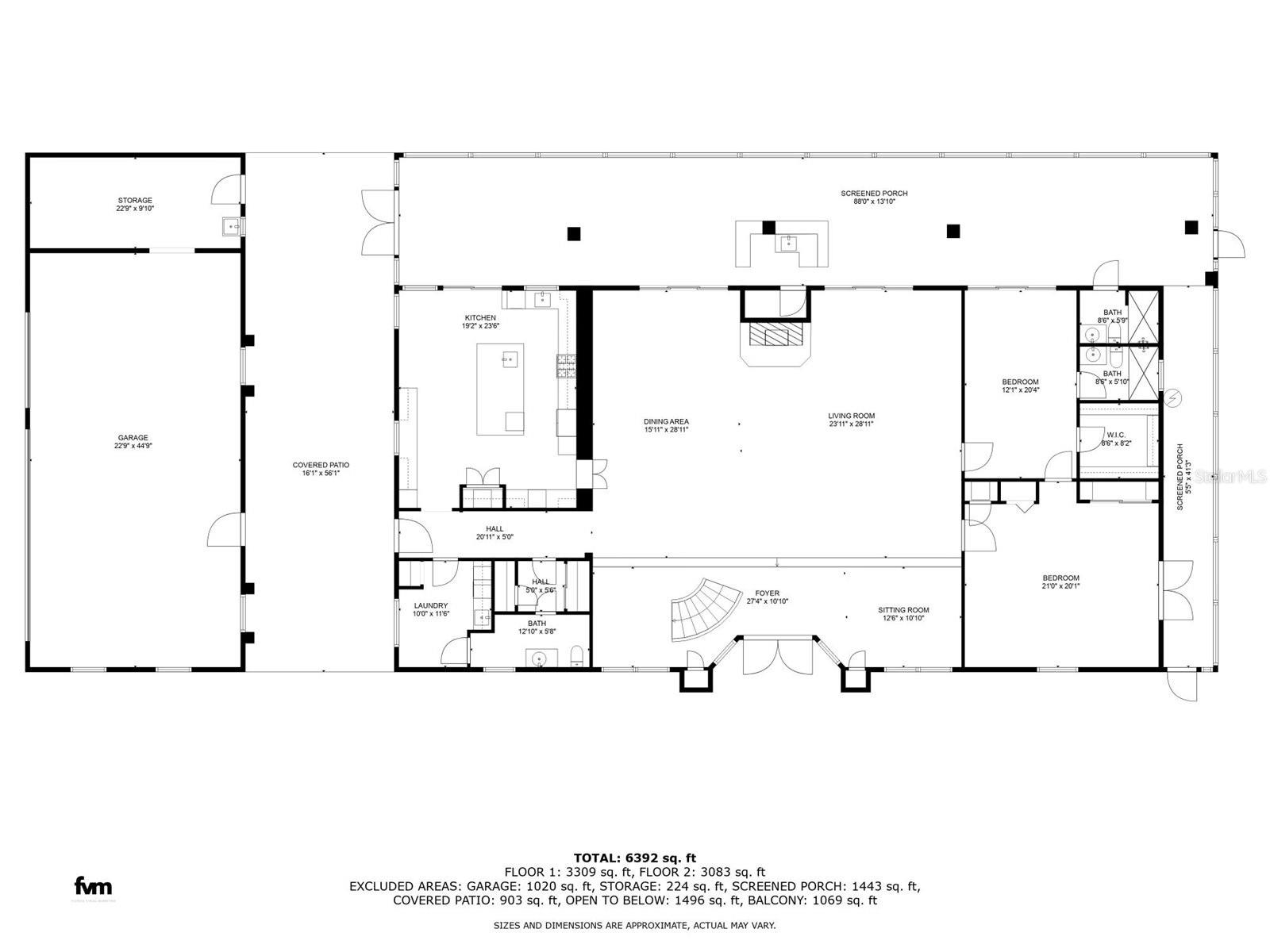
DescriptionUnique Opportunity: This property offers the ability to be divided, providing the potential to build an additional home for family expansion, investment, or creating a multi generational compound. Just had an appraisal and is priced below the appraised value! Exceptional opportunity to blend your passion for equestrian pursuits with the elegance of a luxury estate, set on nearly 11 acres in beautiful Odessa. Enter through a private gate and follow the winding drive to a stunning rural retreat, positioned to overlook a peaceful pond and surrounded by natures tranquility. This 6 bedroom, 8 bathroom estate embodies country living with modern luxury. The home features a bonus room that could easily be another bedroom, a side entry 3 car garage with workshop, circular driveway, and a porte cochre that connects the residence and garage. Upon entering, youre immediately welcomed by breathtaking 33 foot soaring ceilings, a cozy fireplace, elegant travertine flooring, and stone accent trim, all thoughtfully designed to frame spectacular pond views. One of the most sought after features of the home is the downstairs in law suite, offering exceptional flexibility. Located on the main level, the private suite has it's own bedroom, full bathroom, spacious walk in closet, living room, and a private exterior entrance, ideal for extended family, guests, or multigenerational living. It can also easily serve as a primary suite on the main floor, providing true single level living if desired. On the opposite wing of the home, the newly remodeled chefs kitchen is nothing short of spectacular. Showcasing a striking blend of marble and granite countertops, custom cabinetry and lighting, a gas cooktop beneath a bronze clad hood, and an oversized island perfect for gathering and entertaining. Adding a unique touch of timeless elegance, antique Egyptian doors mark the entrance to the kitchen, an unforgettable architectural statement. Behind another set of Egyptian doors, youll discover a hidden custom bar. Adjacent to the kitchen are a half bath and a generously sized laundry room accented with bronze countertops. Ascend the staircase to the second level, where expansive wall space provides the perfect gallery for artwork. Here youll find four additional bedrooms plus an office, with each bedroom offering its own private bathroom, high ceilings, and incredible pond views. A wraparound balcony spans this level, allowing you to fully appreciate the surrounding wooded landscape and water views. The primary suite is truly a retreat of its own, featuring vaulted ceilings, a large walk in closet, and a spa inspired bathroom complete with triple sinks, a dedicated makeup area, and an oversized shower. Step outside to the expansive screened balcony, which wraps around the back and one side of the home, an ideal setting for relaxing, entertaining, or simply enjoying the serene pond views. The outdoor amenities are equally impressive. A charming 2 story small animal barn with a metal roof fondly known as Happy Hare, offers endless possibilities as a retreat, man cave, she shed, or hobby space. Golf enthusiasts will appreciate the private putting green, while equestrians will love the close proximity to a nearby nature preserve with nearly five miles of scenic riding trails. This exceptional estate delivers a truly rare lifestylewhere luxurious living, privacy, and outdoor adventure come together to create the ultimate private sanctuary.
Payment Calculator
- Principal & Interest -
- Property Tax $
- Home Insurance $
- HOA Fees $
- Monthly -
For a Fast & FREE Mortgage Pre-Approval
Apply Now
Apply NowFeatures
Building and Construction
- Covered Spaces: 0.00
- Exterior Features: Balcony, Sliding Doors, Storage
- Fencing: Electric, Fenced
- Flooring: Brick, Luxury Vinyl, Travertine
- Living Area: 6051.00
- Other Structures: Barn(s), Workshop
- Roof: Shingle
Land Information
- Lot Features: Irregular Lot, Pasture, Zoned for Horses
Garage and Parking
- Garage Spaces: 3.00
- Open Parking Spaces: 0.00
- Parking Features: Circular Driveway, Covered, Driveway, Guest, Parking Pad, Portico, RV Access/Parking, Workshop in Garage
Eco-Communities
- Water Source: Well
Utilities
- Carport Spaces: 0.00
- Cooling: Central Air
- Heating: Central
- Sewer: Septic Tank
- Utilities: BB/HS Internet Available, Cable Available, Electricity Connected
Finance and Tax Information
- Home Owners Association Fee: 0.00
- Insurance Expense: 0.00
- Net Operating Income: 0.00
- Other Expense: 0.00
- Tax Year: 2024
Other Features
- Appliances: Built-In Oven, Cooktop, Dishwasher, Disposal, Range, Refrigerator, Water Filtration System, Wine Refrigerator
- Country: US
- Furnished: Unfurnished
- Interior Features: Cathedral Ceiling(s), Ceiling Fans(s), Eat-in Kitchen, High Ceilings, Living Room/Dining Room Combo, Open Floorplan, Solid Wood Cabinets, Split Bedroom, Stone Counters, Vaulted Ceiling(s), Walk-In Closet(s)
- Legal Description: TRACT BEG 15 FT E AND 413 FT S OF NW COR OF NE 1/4 RUN E 146 FT N 44 DEG 21 MIN 00 SEC E 138 FT N 82 DEG 28 MIN 20 SEC E 275 FT S 81 DEG 55 MIN 09 SEC E 288 FT E 500 FT S 365.24 FT W 1301.20 FT AND N 264 FT TO POB
- Levels: Two
- Area Major: 33556 - Odessa
- Occupant Type: Owner
- Parcel Number: U-18-27-17-ZZZ-000000-12590.0
- View: Trees/Woods, Water
- Views: 179
- Zoning Code: AR
Nearby Subdivisions
04 Lakes Estates
Acreage
Arbor Lakes Ph 3b
Ashley Lakes
Ashley Lakes Ph 01
Ashley Lakes Ph 2a
Asturia Ph 1b 1c
Asturia Ph 1d
Asturia Ph 2a 2b
Asturia Ph 3
Asturia Ph 5
Belle Meade
Belmack Acres
Canterbury
Canterbury Village First Add
Citrus Green Ph 2
Clarkmere
Copeland Creek
Farmington
Grey Hawk At Lake Polo
Grey Hawk At Lake Polo Ph 02
Hammock Woods
Holiday Club
Ivy Lake Estates
Keystone Crossings
Keystone Grove Lakes
Keystone Lake View Park
Keystone Meadow 3
Keystone Park
Keystone Park Colony
Keystone Park Colony Land Co
Keystone Park Colony Sub
Keystone Shores Estates
Keystone Terrace
Lake Breckenridge
Lake Maurine Sub
Lake Mineola
Lake Taylor
Lakes Of Keystone
Lakeside Grove Estates
Magnolia Farms
Nine Eagles
Northbridge At Lake Pretty
Northton Groves Sub
Not In Hernando
Odessa Lakefront
Odessa Preserve
Parker Pointe Ph 01
Parker Pointe Ph 02a
Parker Pointe Phase One
Rainbow Terrace
Ridgeland Rep
Soleta At Starkey Ranch
South Branch Preserve
South Branch Preserve Ph 1
South Branch Preserve Ph 2a
South Branch Preserve Ph 2b
South Branch Preserve Ph 2b 3
South Branch Preserve Ph 4a 4
Southfork At Van Dyke Farms
St Andrews At The Eagles Un 1
St Andrews At The Eagles Un 2
Starkey Ranch
Starkey Ranch Pcls 8 9 Ph 1
Starkey Ranch Ph 1 Pcls 8 9
Starkey Ranch Ph 1 Pcls 8 & 9
Starkey Ranch Ph 2 Pcls 8 9
Starkey Ranch Ph 2 Prcl D
Starkey Ranch Ph 3 Prcl F
Starkey Ranch Prcl 7
Starkey Ranch Prcl A
Starkey Ranch Prcl B2
Starkey Ranch Prcl C 1
Starkey Ranch Prcl C1
Starkey Ranch Prcl C2
Starkey Ranch Prcl D Ph 1
Starkey Ranch Prcl D Ph 2
Starkey Ranch Village 1 Ph 15
Starkey Ranch Village 1 Ph 2a
Starkey Ranch Village 1 Ph 2b
Starkey Ranch Village 1 Ph 3
Starkey Ranch Village 1 Ph 4a4
Starkey Ranch Village 1 Ph 5
Starkey Ranch Village 2 Ph 1a
Starkey Ranch Village 2 Ph 1b1
Starkey Ranch Village 2 Ph 1b2
Starkey Ranch Village 2 Ph 2a
Starkey Ranch Village 2 Ph 2b
Starkey Ranch Whitfield Preser
Starkey Ranch65 Lots
Stasia Platted Minor Sub
Steeplechase
Stillwater Ph 2
Swan Cove
Tarramor
Tarramor Ph 1
Tarramor Phase 1
The Paddocks At Van Dyke Farm
The Trails At Van Dyke Farms
Turnberry At The Eagles Un 2
Unplatted
Victoria Lakes
Warren Estates
Waterstone
Windsor Park At The Eaglesfi
Wyndham Lake Sub Ph One
Wyndham Lakes Ph 04
Wyndham Lakes Phase 4
Zzz Unplatted
- Natalie Gorse, REALTOR ®
- Tropic Shores Realty
- Office: 352.684.7371
- Mobile: 352.584.7611
- Mobile: 352.799.3239
- nataliegorse352@gmail.com



































































