2089 Arlington Street, SARASOTA, FL 34239
Active
Property Photos
Would you like to sell your home before you purchase this one?
Priced at Only: $2,961,700
For more Information Call:
Address: 2089 Arlington Street, SARASOTA, FL 34239
Property Location and Similar Properties
- MLS#: TB8471775 ( Residential )
- Street Address: 2089 Arlington Street
- Viewed: 154
- Price: $2,961,700
- Price sqft: $561
- Waterfront: No
- Year Built: 2026
- Bldg sqft: 5284
- Bedrooms: 5
- Total Baths: 6
- Full Baths: 4
- 1/2 Baths: 2
- Garage / Parking Spaces: 2
- Days On Market: 100
- Additional Information
- Geolocation: 27.3176 / -82.5279
- County: SARASOTA
- City: SARASOTA
- Zipcode: 34239
- Subdivision: La Linda Terrace
- Provided by: COMPASS FLORIDA, LLC
- Contact: Estela Ziu
- 305-851-2820

- DMCA Notice
-
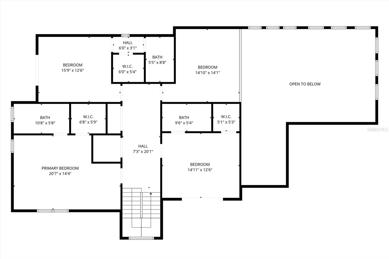
Description2089 Arlington Street, where architecture meets light, space, and coastal elegance, this newly constructed contemporary residence offers 4,231 square feet of living space and 5,284 total square feet, thoughtfully designed with architectural precision and warm minimalism. Completed in January 2026, this striking two story home sits on a rare double corner lot and features 5 bedrooms and 6 bathrooms, delivering both scale and sophistication. The open concept interior is defined by dramatic 22 foot ceilings, expansive custom windows and doors, and an abundance of natural light throughout. The main level is anchored by a statement chefs kitchen imported from Italy, showcasing custom cabinetry, luxury built in appliances, a Sub Zero refrigerator, premium hardware, and top quality London Fog granite countertops. A concealed secondary kitchen provides additional functionality and discretion, ideal for entertaining and catered events. The primary suite is conveniently located on the ground floor, offering a private retreat with serene views and a spa inspired bath. Additional bedrooms are generously sized, each with access to a full bathroom. A custom glass wine room adds a refined architectural focal point, while a loft style family/media lounge on the second level overlooks the main living area, enhancing the homes open, airy feel. Designed for seamless indooroutdoor living, oversized sliding doors open to a private resort style setting with a custom pool and spa, covered terrace, and enhanced landscaping. Architectural exterior lighting highlights the homes clean lines and modern faade after sunset. Quality and performance are paramount: both levels are constructed of solid concrete block, and three independent HVAC systems serve the ground floor, primary suite, and second floor for optimal comfort and efficiency. Additional features include a private elevator, and all custom made windows, doors, and cabinetry throughoutevidence of meticulous attention to detail in every finish. Ideally located for effortless travel and coastal lifestyle enjoyment, this home is approximately 1215 minutes from SarasotaBradenton International Airport, about 1 hour 10 minutes from Tampa International Airport, 1015 minutes to Lido Key, and about 15 minutes to Siesta Key, world renowned for powder white sand and Gulf sunsets. Situated outside of a flood zone, this exceptional residence presents a rare opportunity to own a custom built contemporary home where design, craftsmanship, location, and lifestyle converge.
Payment Calculator
- Principal & Interest -
- Property Tax $
- Home Insurance $
- HOA Fees $
- Monthly -
For a Fast & FREE Mortgage Pre-Approval
Apply Now
Apply NowFeatures
Building and Construction
- Covered Spaces: 0.00
- Exterior Features: Balcony, Garden, Lighting, Sidewalk, Sliding Doors
- Flooring: Ceramic Tile, Hardwood
- Living Area: 4231.00
- Roof: Concrete
Property Information
- Property Condition: Completed
Land Information
- Lot Features: Landscaped, Level, Oversized Lot, Private, Sidewalk
Garage and Parking
- Garage Spaces: 2.00
- Open Parking Spaces: 0.00
- Parking Features: Circular Driveway
Eco-Communities
- Pool Features: Heated, In Ground
- Water Source: Public
Utilities
- Carport Spaces: 0.00
- Cooling: Central Air, Zoned
- Heating: Central, Zoned
- Sewer: Public Sewer
- Utilities: Electricity Connected, Water Connected
Finance and Tax Information
- Home Owners Association Fee: 0.00
- Insurance Expense: 0.00
- Net Operating Income: 0.00
- Other Expense: 0.00
- Tax Year: 2025
Other Features
- Appliances: Built-In Oven, Convection Oven, Cooktop, Dishwasher, Disposal, Electric Water Heater, Refrigerator
- Country: US
- Furnished: Unfurnished
- Interior Features: Eat-in Kitchen, Elevator, High Ceilings, Living Room/Dining Room Combo, Open Floorplan, Primary Bedroom Main Floor, Smart Home, Stone Counters, Walk-In Closet(s)
- Legal Description: LOT 23 & E 25 FT OF LOT 21 BLK B LA LINDA TERRACE
- Levels: Two
- Area Major: 34239 - Sarasota/Pinecraft
- Occupant Type: Vacant
- Parcel Number: 2035120084
- Style: Contemporary
- View: Garden, Pool
- Views: 154
- Zoning Code: RMF3
Nearby Subdivisions
Akin Acres
Arlington Park
Avon Heights 2
Battle Turner
Bay View Heights Add
Bayview
Blossom Brook
Brunks Add To City Of Sarasota
Burton Lane
Cherokee Lodge
Cherokee Park
Cottage In The Pines
Desota Park
Floyd Cameron Sub
Forest Lakes Cntry Club Estate
Frst Lakes Country Club Estate
Greenwich
Grove Lawn Rep
Grove Lawn Replat
Harbor Acres
Harbor Acres Sec 2
Hartsdale
Hibiscus Park 1
Hibiscus Park 2
Highland Park 2
Homecroft
Hudson Bayou
Hudson Bayoumidwood Manor
La Linda Terrace
Lewis Combs Sub
Loma Linda Park
Loma Linda Park Resub
Long Meadow
Matheneys Sub
Mcclellan Park
Mcclellan Park Resub
Mckune Sub
Midwood Manor
Nichols Sarasota Heights
None
Orange Park
Pinecraft
Pittmancampo Sub
Poinsettia Park 2
Pomelo Place Resub
Purtz Sub
Rio Vista
Rustic Lodge
Rustic Lodge 2
Rustic Lodge 4
San Remo Estates
Seminole Heights
Shoreland Woods
Shoreland Woods Sub
Singletarys
South Gate
South Gate Manor
South Gate Village Green 08
South Side Park
Sunnyside Park
Sunset Bay Sub
Turners J C Sub
Village Green Club Estates
Wildwood Gardens
- Natalie Gorse, REALTOR ®
- Tropic Shores Realty
- Office: 352.684.7371
- Mobile: 352.584.7611
- Mobile: 352.799.3239
- nataliegorse352@gmail.com























































