6728 19th Street N, ST PETERSBURG, FL 33702
Active
Property Photos
Would you like to sell your home before you purchase this one?
Priced at Only: $395,000
For more Information Call:
Address: 6728 19th Street N, ST PETERSBURG, FL 33702
Property Location and Similar Properties
- MLS#: TB8475021 ( Residential )
- Street Address: 6728 19th Street N
- Viewed: 1
- Price: $395,000
- Price sqft: $184
- Waterfront: No
- Year Built: 1960
- Bldg sqft: 2151
- Bedrooms: 4
- Total Baths: 3
- Full Baths: 3
- Garage / Parking Spaces: 1
- Days On Market: 16
- Additional Information
- Geolocation: 27.8331 / -82.6606
- County: PINELLAS
- City: ST PETERSBURG
- Zipcode: 33702
- Subdivision: Meadow Lawn 12th Add
- Elementary School: Lynch
- Middle School: Meadowlawn
- High School: Northeast
- Provided by: KELLER WILLIAMS TAMPA PROP.
- Contact: Jared Rutherford
- 813-264-7754

- DMCA Notice
-
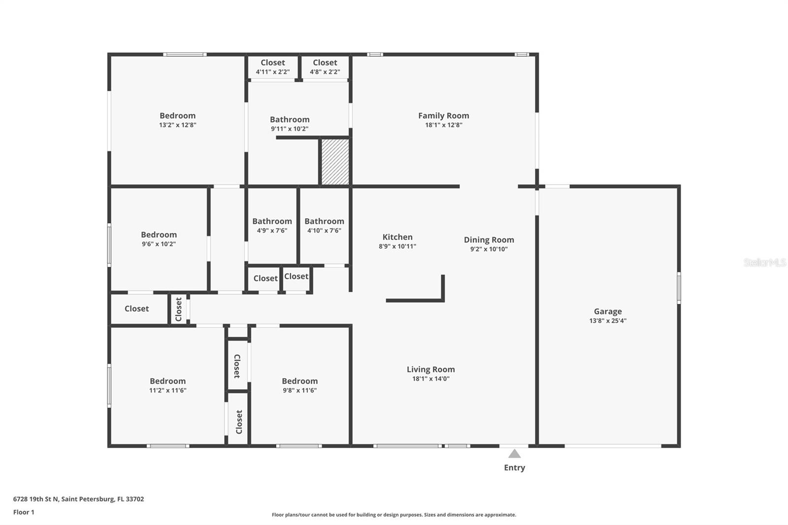
DescriptionWelcome to this lovingly maintained 4 bedroom, 3 bathroom home in the heart of St. Petersburg, proudly owned by the original owner since 1963. Perfectly located just minutes from vibrant 4th Street with its shopping, dining, and everyday conveniences, this property offers space, character, and an unbeatable location. Step inside to discover a spacious open concept layout featuring a bright kitchen that flows seamlessly into the living and dining areas ideal for both entertaining and everyday living. The thoughtfully designed floor plan also includes a separate family room, offering additional space for relaxation, a media room, or a play area. The primary suite and additional bedrooms provide comfort and flexibility for family, guests, or a home office setup. With three full bathrooms, mornings are effortless and accommodating for everyone. Situated on an oversized 116' x 114' lot, this property offers a fully fenced backyard designed for privacy and enjoyment. The large yard features a private pool perfect for weekend gatherings, summer barbecues, or simply unwinding in your own Florida retreat. A one car garage adds convenience and additional storage. For added peace of mind, a recent 4 point inspection report is available, and the seller is currently completing the recommended repairs. This is a rare opportunity to own a spacious, well cared for home with decades of pride in ownership all in a prime St. Petersburg location. Schedule your private showing today!
Payment Calculator
- Principal & Interest -
- Property Tax $
- Home Insurance $
- HOA Fees $
- Monthly -
For a Fast & FREE Mortgage Pre-Approval
Apply Now
Apply NowFeatures
Building and Construction
- Covered Spaces: 0.00
- Exterior Features: Sidewalk
- Flooring: Carpet, Tile
- Living Area: 1720.00
- Roof: Shingle
School Information
- High School: Northeast High-PN
- Middle School: Meadowlawn Middle-PN
- School Elementary: Lynch Elementary-PN
Garage and Parking
- Garage Spaces: 1.00
- Open Parking Spaces: 0.00
Eco-Communities
- Pool Features: In Ground
- Water Source: Public
Utilities
- Carport Spaces: 0.00
- Cooling: Central Air
- Heating: Central
- Sewer: Public Sewer
- Utilities: Electricity Connected, Sewer Connected, Water Connected
Finance and Tax Information
- Home Owners Association Fee: 0.00
- Insurance Expense: 0.00
- Net Operating Income: 0.00
- Other Expense: 0.00
- Tax Year: 2024
Other Features
- Appliances: Dishwasher, Dryer, Microwave, Range, Washer
- Country: US
- Furnished: Unfurnished
- Interior Features: Ceiling Fans(s), Eat-in Kitchen, Living Room/Dining Room Combo, Open Floorplan
- Legal Description: MEADOW LAWN 12TH ADD BLK 67, LOT 33
- Levels: One
- Area Major: 33702 - St Pete
- Occupant Type: Owner
- Parcel Number: 36-30-16-56826-067-0330
Nearby Subdivisions
Barcley Estates
Barcley Estates 3rd Add
Barcley Estates 5th Add
Broadwater
Bryant Geo W Sub
Chatham Park
Eden Shores Sec 11
El Centro
Fairview Estates
Florida Riviera 10
Florida Riviera 2
Florida Riviera 5 Sec A
Gandy Hwy Sub
Georgian Terrace
Glen Lakes Broderick Add
Harbor Isle
Hope Lutheran
Kelly John A Scarbrough Sub
Marilyn Heights Rep
Meadow Lawn 10th Add
Meadow Lawn 11th Add
Meadow Lawn 12th Add
Meadow Lawn 13th Add
Meadow Lawn 15th Add
Meadow Lawn 1st Add
Meadow Lawn 2nd Add
Meadow Lawn 5th Add
Meadow Lawn 7th Add
Meadow Lawn 9th Add
Meadow Lawn Pinellas Add
Mira Bella 1
Monticello Park
Mullers Sub
North St Petersburg
North St Petersburg Rep
North St Petersburg Rep Of Blk
Pine Hills
Rio Vista
Rio Vista Sec 5
Rio Vista Sec 6
Riviera Bay
Riviera Bay 1st Add
Riviera Bay Second Add
Riviera Bay Second Add Pt Rep
Riviera North The 1st Add
Riviera The
Sans Souci Estates
Shore Acres Bayou Grande Sec
Sun Lit Shores
Sun Plaza Isles
Sun Plaza Isles Sec 3
Sun Plaza Isles Sec 4
Sunlit Shores
Tanglewood Isle Sub
Tanglewood Sub
Toussie Terrace 1st Add
Washington Terrace
Watermark Condo
Whiteway Annex
Winston Park
- Natalie Gorse, REALTOR ®
- Tropic Shores Realty
- Office: 352.684.7371
- Mobile: 352.584.7611
- Mobile: 352.799.3239
- nataliegorse352@gmail.com
















































