1 Colony Point Drive A19, PUNTA GORDA, FL 33950
Property Photos
Would you like to sell your home before you purchase this one?
Priced at Only: $349,000
For more Information Call:
Address: 1 Colony Point Drive A19, PUNTA GORDA, FL 33950
Property Location and Similar Properties
- MLS#: C7519364 ( Residential )
- Street Address: 1 Colony Point Drive A19
- Viewed: 12
- Price: $349,000
- Price sqft: $221
- Waterfront: No
- Year Built: 1972
- Bldg sqft: 1581
- Bedrooms: 2
- Total Baths: 2
- Full Baths: 2
- Garage / Parking Spaces: 1
- Days On Market: 22
- Additional Information
- Geolocation: 26.927 / -82.0861
- County: CHARLOTTE
- City: PUNTA GORDA
- Zipcode: 33950
- Subdivision: Colony Point
- Building: Colony Point
- Elementary School: Sallie Jones
- Middle School: Punta Gorda
- High School: Charlotte
- Provided by: RE/MAX HARBOR REALTY
- Contact: Luke Andreae
- 941-639-8500

- DMCA Notice
-
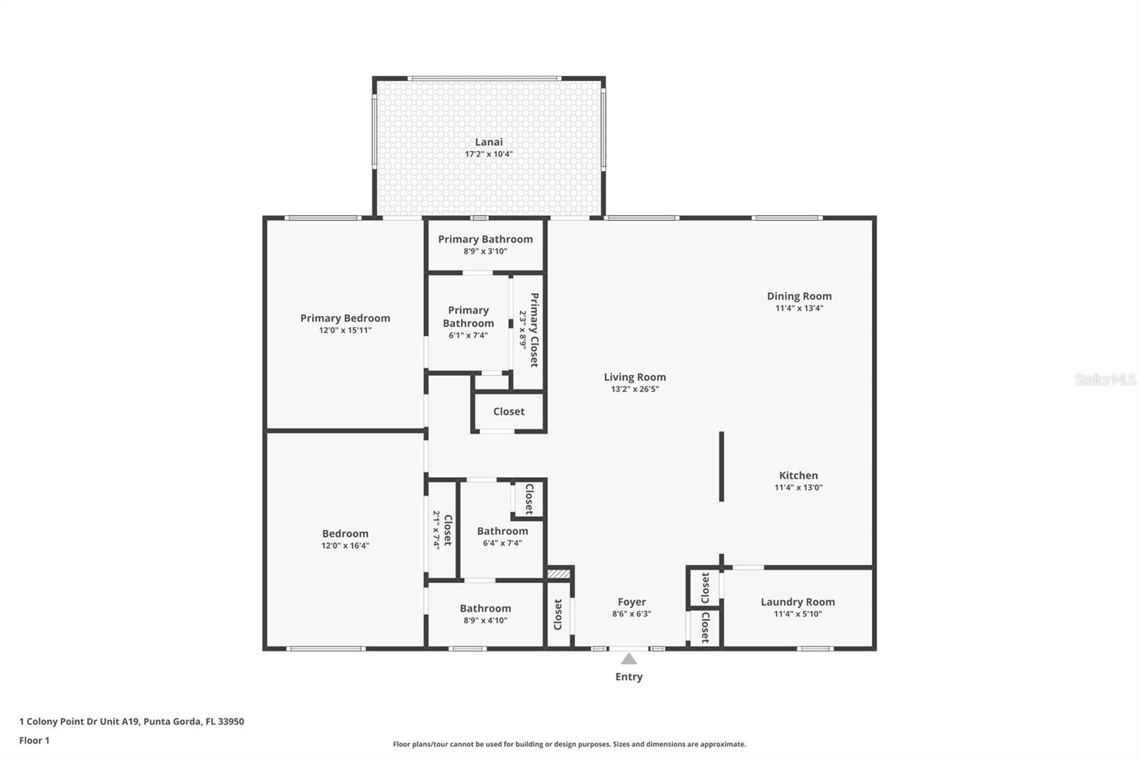
DescriptionWATERFRONT CONDO W/SUNSET VIEWS OVER CHARLOTTE HARBOR & IMMEDIATE BOATING ACCESS This TURN KEY, FURNISHED condo features a western rear exposure that ensures beautiful sunset views over Charlotte Harbor, adding a dramatic finish to each day. The colorful skies, open water views, and boats passing by in the harbor set the tone at this first floor, 2 bed/2 bath waterfront condo in Colony Point at Punta Gorda Isles. Great room and dining area feature large picture windows that frame the harbor and flood the space with natural light. The open layout allows the living and dining areas to flow seamlessly, creating an inviting space for everyday living and entertaining. Just beyond, the glass enclosed Florida room serves as a year round sitting area with wide, unobstructed water viewsan ideal spot for morning coffee or evening cocktails as the sun sets over the harbor. Well maintained kitchen with white cabinetry, ample counter space, and a functional layout that keeps the cook connected to the main living areas. An adjacent utility/laundry room doubles as a butler's pantry with additional storage and separate caterer's entrance. Unit boasts large bedrooms each with its own en suite bath, creating a well designed layout that works equally well for owners and visiting guests. Condo is being sold fully furnished and turn key, allowing you to settle in and start enjoying the waterfront lifestyle immediately. Assigned, covered parking space is ideally located just steps from the front door. Colony Point is a well maintained waterfront community known for its park like grounds, fresh exterior paint, stone coated metal roof, and strong amenities. Residents enjoy a screened, in ground pool, a clubhouse with catering kitchen, and extended docks offering first come, first serve slips with nearly immediate access to open water. Just minutes from Fishermens Village, Ponce de Leon Park, historic downtown Punta Gorda, waterfront dining, shopping, and walking paths throughout Punta Gorda Isles, this condo works equally well as a full time residence or seasonal escape. Make an appointment today.
Payment Calculator
- Principal & Interest -
- Property Tax $
- Home Insurance $
- HOA Fees $
- Monthly -
For a Fast & FREE Mortgage Pre-Approval
Apply Now
Apply NowFeatures
Building and Construction
- Covered Spaces: 0.00
- Exterior Features: Sidewalk
- Flooring: Carpet, Tile
- Living Area: 1581.00
- Roof: Metal, Tile
Land Information
- Lot Features: FloodZone, City Limits, Paved
School Information
- High School: Charlotte High
- Middle School: Punta Gorda Middle
- School Elementary: Sallie Jones Elementary
Garage and Parking
- Garage Spaces: 0.00
- Open Parking Spaces: 0.00
- Parking Features: Assigned, Covered, Guest
Eco-Communities
- Pool Features: Gunite, In Ground, Outside Bath Access, Screen Enclosure
- Water Source: Public
Utilities
- Carport Spaces: 1.00
- Cooling: Central Air
- Heating: Central, Natural Gas
- Pets Allowed: Yes
- Sewer: Public Sewer
- Utilities: BB/HS Internet Available, Cable Available, Electricity Connected, Sewer Connected, Water Connected
Amenities
- Association Amenities: Clubhouse, Pool
Finance and Tax Information
- Home Owners Association Fee Includes: Common Area Taxes, Pool, Escrow Reserves Fund, Fidelity Bond, Insurance, Maintenance Structure, Maintenance Grounds, Private Road, Sewer, Trash, Water
- Home Owners Association Fee: 840.00
- Insurance Expense: 0.00
- Net Operating Income: 0.00
- Other Expense: 0.00
- Tax Year: 2025
Other Features
- Appliances: Dishwasher, Disposal, Dryer, Electric Water Heater, Microwave, Range, Refrigerator, Washer
- Association Name: Colony Point Board
- Country: US
- Furnished: Furnished
- Interior Features: Ceiling Fans(s), Open Floorplan, Window Treatments
- Legal Description: CPC 000 0000 0A19 COLONY POINT UN A-19 405/984 DC3674/1573-TLG PR12-1062-TLG LOA3674/516 3717/842 3745/792
- Levels: One
- Area Major: 33950 - Punta Gorda
- Occupant Type: Tenant
- Parcel Number: 412211551036
- Possession: Close Of Escrow
- Style: Mediterranean
- Unit Number: A19
- View: Water
- Views: 12
- Zoning Code: GM-15
Similar Properties
Nearby Subdivisions
Banyan Point Ph 01
Banyan Point Ph 03
Bella Lago At Vivante
Bella Lago At Vivante Xix
Bella Lagovivante Xvii
Bella Lagovivante Xviii
Bella Lagovivante Xx
Bella Lagovivante Xxi
Bermuda View
Boca Lago Vivante 03
Boca Lago Vivante V
Boca Lagovivante 02
Boca Lagovivante 03
Boca Lagovivante 04
Boca Lagovivante 06
Boca Lagovivante Iii
Boca Lagovivante V
Bridge Point Ph 04
Bridge Point Ph 05
Captains Landing
Champagne Estates Ph 01 Bldg 0
Charlevoi
Charlotte Bay Villas042
Clipper Cove At Bal Harbor Ph
Clipper Cove Village
Clipper Cove Village 1618
Clipper Cove Village 2224
Clipper Cove Village Bldg 09
Clipper Cove Village Bldg 18
Colony Point
Conquistador Landing Ph 03
Driftwood Bldg A
Emerald Pointe Ph 01
Emerald Pointe Ph 04
Emerald Pointe Ph 06 Bldg E
Emerald Pointe Ph 06 Bldg F
Emerald Pointe Twnhs Ph 05
Estuary At Punta Gorda Isles
Fountain Court
Fountain Court Bldg 02
Fountain Court Ph 01
Fountain Court Ph 04
Gateway Point
Grand Bay Condo
Grand Covepunta Gorda Isles
Harbor Landing Ph 04 Bldg 04
Harbor Point Ph 01 Bldg A
Hibiscus 01
Islander Point
Islander Point Condo
Isles Club
Isles Club 02
Isles Cove Ph 09
Isles Garden Villas Ph 03 Bldg
Jamaica Way
Jamaica Way Ph 01
Jamaica Way Ph 03
Lagoon
Laporta Boca Ph 03
Lavista Condo
Little Hbrpunta Gorda Isles
Lyme Terrace Ph 04
Mediterranean Court
Outlook Cove
Palacio Del Sol
Palm Bay
Palm Isles Ph 01
Paradise Pointecharlotte Harb
Park Bch Club Association Cond
Peace Harbor
Peace Harbor Condo
Points West Ph 01 Bldg 01
Points West Ph 02 Bldg 02
Preserve Bal Harbor
Punta Gorda Isles
Retreat At Burnt Store Isles B
Rockdove
Rookery
Sea Isles Condo
Sea Isles Ph 01 Bldg 01
Sea Isles Ph 04
Seahaven
Silver Cove
Silver Cove Condo
Silversands Condominiums
Solamar
Southwind
Starboard Point Ph 01 Bldg 03
Starboard Point Ph 02 Bldg 02
Starboard Point Ph 03 Bldg 01
Sun Lake Villas
Tarpon Cove
Tarpon Cove Ph 01
Tarpon Cove Ph 03
Tarpon Cove Ph 08
Tarpon Cove Ph 10
Tarpon Cove Ph 11
Tarpon Cove Ph 12
Tarpon Cove Ph 13
Tarpon Cove Ph 15
Three Stags
Venetian Isles
Venetian Isles Ph 01 Bldg 01
Venetian Isles Ph 03 Bldg 03
Venetian Isles Ph 05 Bldg 05
Villas Burnt Store Isles 01
Villas Cedar Key
Vizcaya At Burnt Store Isles
Vizcaya At Burnt Store Isles P
Water Gardens
Wesley Park
Whispering Pines Club
White Ibis
Windjammer Point Ph 01 Bldg 05
Winquist Twnhs
- Natalie Gorse, REALTOR ®
- Tropic Shores Realty
- Office: 352.684.7371
- Mobile: 352.584.7611
- Fax: 352.799.3239
- nataliegorse352@gmail.com
































































