10843 Poinciana Drive, CLERMONT, FL 34711
Active
Property Photos
Would you like to sell your home before you purchase this one?
Priced at Only: $599,900
For more Information Call:
Address: 10843 Poinciana Drive, CLERMONT, FL 34711
Property Location and Similar Properties
- MLS#: G5107561 ( Residential )
- Street Address: 10843 Poinciana Drive
- Viewed: 2
- Price: $599,900
- Price sqft: $187
- Waterfront: No
- Year Built: 1990
- Bldg sqft: 3212
- Bedrooms: 4
- Total Baths: 3
- Full Baths: 2
- 1/2 Baths: 1
- Days On Market: 51
- Additional Information
- Geolocation: 28.4921 / -81.775
- County: LAKE
- City: CLERMONT
- Zipcode: 34711
- Subdivision: Saw Mill Run Sub

- DMCA Notice
-
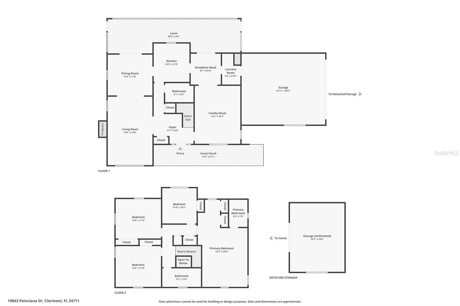
DescriptionThis classic two story pool home offers timeless curb appeal, generous space, and the freedom of .72 acres with no HOA. Featuring 4 bedrooms, 2.5 bathrooms, and 2,108 square feet of living space, the property provides a well balanced layout designed for both everyday living and entertaining. Inside, youll find beautiful hardwood flooring, authentic wood trim and doors, and a formal living room with a wood burning fireplace that creates a warm focal point. A separate formal dining room provides dedicated gathering space, while the spacious family room on the opposite side of the home allows for comfortable, casual living. The kitchen is equipped with solid wood cabinetry, granite countertops, tile flooring, and newer stainless steel appliances, offering both durability and function. All bedrooms are positioned upstairs, including the primary suite with its own attached bath. Outdoor features truly set this property apart, with a large private pool, screened back porch, welcoming front porch, and expansive yard space offering flexibility for recreation, gardening, or future enhancements. In addition to the attached 2 car garage, there is a detached workshop and an additional 2 car carport, providing exceptional storage, hobby, or workspace options. The home is on a well, offering long term utility efficiency, and is situated with comfortable spacing between neighboring properties while remaining conveniently close to shopping, dining, medical facilities, and everyday amenities. Meticulously maintained and full of character, this property presents a rare opportunity to enjoy space, privacy, and versatility in a highly accessible location. Major updates include a newer roof (2022), new AC system (2025), fresh interior and exterior paint (2022), hot water heater (2024) new well pump (2024), replumbed several years ago.
Payment Calculator
- Principal & Interest -
- Property Tax $
- Home Insurance $
- HOA Fees $
- Monthly -
For a Fast & FREE Mortgage Pre-Approval
Apply Now
Apply NowFeatures
Building and Construction
- Covered Spaces: 0.00
- Exterior Features: French Doors, Lighting
- Fencing: Fenced
- Flooring: Carpet, Tile, Wood
- Living Area: 2280.00
- Other Structures: Workshop
- Roof: Shingle
Land Information
- Lot Features: Paved
Garage and Parking
- Garage Spaces: 2.00
- Open Parking Spaces: 0.00
Eco-Communities
- Pool Features: In Ground
- Water Source: Well
Utilities
- Carport Spaces: 2.00
- Cooling: Central Air
- Heating: Central
- Pets Allowed: Yes
- Sewer: Septic Tank
- Utilities: Electricity Connected
Finance and Tax Information
- Home Owners Association Fee: 0.00
- Insurance Expense: 0.00
- Net Operating Income: 0.00
- Other Expense: 0.00
- Tax Year: 2025
Other Features
- Appliances: Dishwasher, Dryer, Microwave, Range, Refrigerator, Washer
- Country: US
- Furnished: Unfurnished
- Interior Features: Ceiling Fans(s), Eat-in Kitchen, PrimaryBedroom Upstairs, Solid Wood Cabinets, Stone Counters
- Legal Description: SAW MILL RUN SUB LOT 4 THAT PORTION OF THE S 1/2 OF VACATED MIMOSA ST LYING N OF LOT 4 E 1/2 OF VACATED PORTION OF POINCIANA DR LYING W OF LOT 4 PB 29 PG 40 ORB 1004 PG 924
- Levels: Two
- Area Major: 34711 - Clermont
- Occupant Type: Owner
- Parcel Number: 14-23-25-0300-000-00400
- Style: Traditional
- Zoning Code: R-6
Nearby Subdivisions
- Natalie Gorse, REALTOR ®
- Tropic Shores Realty
- Office: 352.684.7371
- Mobile: 352.584.7611
- Mobile: 352.799.3239
- nataliegorse352@gmail.com



















































